
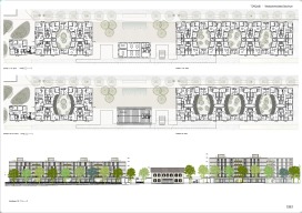
1. Rang! Westbahnhofareal Solothurn mit 119 Wohnungen und Gewerberäume
Am Westbahnhof entsteht ein lebendiges Stadtquartier, das urbane Verdichtung mit hoher Freiraumqualität verbindet. Der neu gestaltete Bahnhofplatz bildet den westlichen Zugang zur Altstadt. Mit grosskronigen Bäumen, konsumfreien Sitzbereichen und einem Wasserspiel lädt dieser zum Verweilen ein und schafft einen einladenden, klimatisch angenehmen Stadtraum. Die Sichtachse entlang der Westbahnhofstrasse zum Amtshausplatz bleibt freigehalten, wodurch Offenheit und Orientierung entsteht. Kalksteinpflaster und ortstypische Vegetation schaffen Atmosphäre und regionalen Bezug. Der Segetzplatz verbindet das Quartier über eine Veloschnellroute mit den südwestlichen Stadtteilen. Der Raum wird grün und durchlässig gestaltet – mit Kiesraseninseln und Baumgruppen, die eine gute Zonierung und Staffelung im Übergang zu den angrenzenden Wohnbauten erzeugen. Die Erschliessung der Wohnbauten erfolgt über üppig bepflanzte Innenhöfe, die den Eindruck vermitteln, in der Stadt zu wohnen und gleichzeitig als urbane Rückzugsorte dienen. Diese Höfe sind stimmungsvoll gestaltet und schaffen eine vermittelnde Schwelle mit unerwarteten Durchblicken zur städtischen Aussenwelt.







